1127 Durden Road, Prattville, AL 36067
- 5 beds |
- 3 baths |
- 3,122 sqft
Single-Family Home
Built in 1987
3.57acre lot
—— car garage
$139/sqft
Listed 3 months ago
Property Description
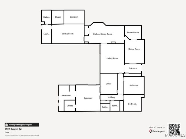
WELCOME to this spacious 5 bedroom, 3 bath brick home on over 3.5 acres in Prattville!! Offering more that 3,100 sq ft all on one level. With its generous square footage and flexible layout this property could easily function as a mutigenerational home, providing space for extended family while still offering privacy. Add in the unique benefit of city/ county split lot--convenience plus flexibility--and you'll see why this property is a rare find in Prattville The home features a total of 3,511 adjusted square feet, beyond the carport, you'll find a finished space that was once just storage--now fully floored, heated, and cooled with its own split unit. It's the perfect spot for a guest bedroom, craft studio, or quiet home office. Outdoor Amenities You’ll Love: • In-ground Saltwater pool placed in 2019 • Gazebo • Privacy fence • Detached workshop • Outbuilding • 400 sq. ft. prefab carport • Large patio and open porch Roof replaced in 2023, Windows replaced in 2023, Two HVAC units- one 9 years old, one 4 years old, Septic inspected and cleaned in 2023, dishwasher 3 years old. The seller has recently completed a professional inspection and addressed any deferred maintenance that came to light.
- Listing Status:
- Active
- Listing Office:
- Thomas & Land Real Est Grp LLC : 334-356-6310
- Listing Agent:
- Lisa M. Crowell : 334-356-6310
- MLS ID:
- 578744
- General: Covered PatioFenceSprinkler/IrrigationStorageStorageWorkshop
- Style: One Story
- Other Structures: StorageWorkshop
- Pool: In GroundPoolSalt WaterPool Equipment
- Parking: Attached CarportDrivewayParking Pad
- Windows: BlindsDouble Pane Windows
- General: Brick1Slab
- Road/Access: Public Road
- Originating MLS: MAAOR_MAAR
- County: Autauga
- Topography: Level
- Zoning: BEGIN AT NW COR OF SE1/4 OF SW1/4 OF S32 T18N R16E TH S 623.85 TO A PT ON N ROW OF DURDEN RD TH NE'LY ALG N ROW 393.88 TH LEAVING SD ROW NW'LY THE FOLLOWING DISTANCES: 59.46'; 164.78'; 113.55' 131.06' TO POB. 393. 88X623.85 2.54AC10-09-32-3-001-006-004-0
- Fencing: PartialPrivacy
- Utilities: Cable AvailableElectricity AvailableNatural Gas AvailableHigh Speed Internet Available
- Water: Public
- Sewer: Septic Tank
- Source: MAAOR_MAAR
This listing courtesy of Lisa M. Crowell, Thomas & Land Real Est Grp LLC
Monthly Payment
- Principal & Interest $
- Property Taxes $
- Home Insurance $
- VA Funding Fee $
Location
Schools Nearby
Prattville Elementary School
134 Patrick St, Prattville, AL, 36067
Grades 3-4
3.21 miles away
Prattville Junior High School
1089 Martin Luther King Dr, Prattville, AL, 36067
Grades 7-8
0.99 miles away
Prattville High School
1315 Upper Kingston Rd, Prattville, AL, 36067
Grades 9-12
0.72 miles away






