903 Beau Terre Drive 2, Bentonville, AR 72712
- 4,917 sqft
Commercial Property
Built in 2010
0.7acre lot
—— car garage
$0/sqft
Listed 14 days ago
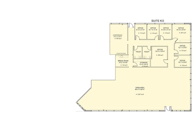
Property Description
Prime Bentonville location • Directly off Interstate 49 with high visibility and easy access. • Only 2 miles from the new Walmart Home Office campus. Custom finishes • Customize your space at the on-site design center: choose your own flooring, paint colors, countertops, and ceiling grid. Office park amenities • Trailhead and walking paths. • 24/7 fitness center. • Stepping Stones Children’s Academy (on-site daycare). • River Grill (onsite dining). • Local summer food trucks.
- Listing Status:
- Active
- Date Added:
- October 24, 2025 at 05:00AM
- Listing Office:
- Focus Commercial Real Estate : 479-254-7000
- MLS ID:
- 1326487
- Current Use: Office
- Source: ARKMLS_NWA
This listing courtesy of Focus Commercial Real Estate
Monthly Payment
- Principal & Interest $
- Property Taxes $
- Home Insurance $
- VA Funding Fee $
Location
Schools Nearby
Apple Glen Elementary School
1801 NE Brave Ln, Bentonville, AR, 72712
Grades KG-4
1.09 miles away
Washington Junior High School
1501 NE Wildcat Way, Bentonville, AR, 72712
Grades 7-8
1.24 miles away
Bentonville High School
1901 SE J St, Bentonville, AR, 72712
Grades 9-12
2.51 miles away






