$145,000
323 Wood Street, Hot Springs, AR 71913
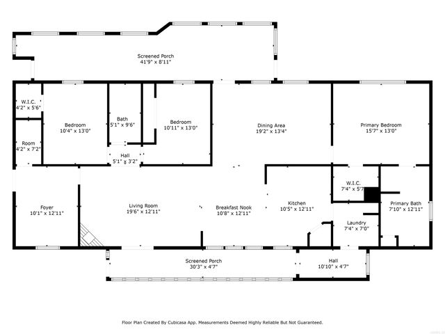
- 3 beds |
- 2 baths |
- 1,841 sqft
Manufactured Home
Built in 2001
0.74acre lot
—— car garage
$79/sqft
Listed 22 days ago
Property Description
Come see this extremely well maintained home with a newer metal roof (replaced in 2019), new water heater, and new accessible walk in shower. There's covered parking, a nice big yard and even though it's near town - it feels like secluded, wooded retreat.
- Listing Status:
- Active
- Date Added:
- October 16, 2025 at 12:00AM
- Listing Office:
- Move Realty : 501-454-3480
- Listing Agent:
- Elise Petro : 501-507-7902
- MLS ID:
- 25041557

- General: Metal/Vinyl SidingScreened PorchFully FencedOutside Storage Area
- Style: Bungalow/Cottage
- Parking: CarportParking PadsThree Car
- Roofing: Metal
- General: One StoryCrawl Space
- Road/Access: Paved
- HOA Amenities: No Fee0.0
- County: Garland
- Zoning: 400-71200-108-000
- Utilities: Sewer-PublicWater-PublicElec-Municipal (+Entergy)
This listing courtesy of Elise Petro, Move Realty
Monthly Payment
$Est. Payment
- Principal & Interest $
- Property Taxes $
- Home Insurance $
- VA Funding Fee $
Location
Schools Nearby
M
Main Street Visual and Preforming Arts Magnet School
, Hot Springs National Park, AR, 71913
Grades PK-6
0.74 miles away
H
Hot Springs Junior Academy
701 Main St, Hot Springs National Park, AR, 71913
Grades 7-8
1.04 miles away
H
Hot Springs World Class High School
701 Emory St, Hot Springs National Park, AR, 71913
Grades 9-12
1.80 miles away

