18231 COMMONWEALTH AVENUE N, Polk City, FL 33868
- 4 beds |
- 3 baths |
- 1,979 sqft
Single-Family Home
Built in 2007
4.95acre lot
2 car garage
$253/sqft
Listed 2 months ago
Property Description
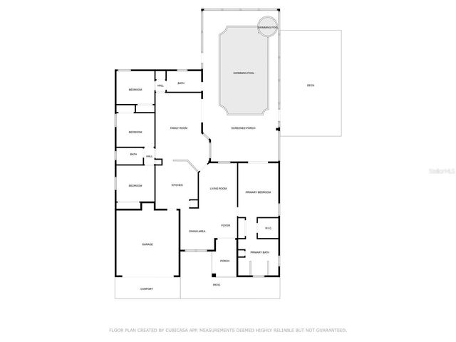
Welcome to your private retreat sitting on almost 5 acres with NO HOA! This 4 bedroom 3 bathroom home has so much to offer! Recent updates include a NEW AC & Water Heater in 2025, NEW 100 gallon water tank for water treatment system in 2024, NEW roof in 2023, LVP flooring installed in 2022 and a NEW propane pool heater in 2019. Additionally, the home is equipped with a Generac Propane Whole House Generator with Auto Switch and leased 100 gallon propane tank. Arriving at the home, you’ll appreciate the front entry gate, for additional security, as well as the beautifully landscaped front yard. Stepping inside you’ll find the living room/dining room combo with new LVP flooring and plenty of natural light. The perfect spot for dinner with family and friends. Entering the kitchen from the dining room, you’ll find ample cabinet space, as well as granite countertops, updated backsplash, stainless steel appliances as well as a breakfast bar, a great spot for a quick meal! The open family room offers plenty of space with sliding doors out to your outdoor oasis! The primary bedroom is generously sized with sliding doors to your pool, and an en-suite featuring a large soaking tub, stand up tiled shower, dual vanities, and spacious closets. The remaining 3 bedrooms have plenty of space and share the remaining 2 bathrooms, one featuring a single sink vanity with tub/shower combo. The pool bathroom features a stand up shower and single sink vanity. Stepping outside you’ll find the perfect Florida retreat! A screened in covered patio and heated pool! Additionally, outside of the pool area you’ll find a wood pergola with solar lighting along with a deck for entertaining. The front half acre of the property is fully fenced in. Zoning allows for farm animals and chickens. This home has it all! Schedule your private showing today!
- Listing Status:
- Active
- Date Added:
- August 2, 2025 at 05:00AM
- Listing Office:
- KELLER WILLIAMS REALTY SMART : 863-577-1234
- Listing Agent:
- Casandra Vann : 863-546-5446
- MLS ID:
- L4954874

- General: Private MailboxStorageHeatedIn Ground
- Style: Florida
- Other Structures: Shed(s)Front PorchDeckRear PorchScreenedCovered
- Pool: GuniteHeatedIn GroundScreen Enclosure
- Parking: DrivewayGarage Door OpenerOff Street
- Roofing: Shingle
- General: BlockConcreteStuccoOneBlock
- Road/Access: Asphalt
- Originating MLS: mfrmls
- County: Polk
- Zoning: LOT 5 OF UNRE SURVEY DESC AS BEG 509.47 FT S OF NE COR OF NW1/4 OF NE1/4 RUN S 100 FT W 2164.53 FT N 05 DEG 01 MIN 00 SEC E 100.4 FT E 2155.25 FT TO POB25-25-08-000000-013040
- View: Trees/Woods
- Fencing: Chain Link
- Utilities: BB/HS Internet AvailableCable AvailableElectricity Connected
- Water: Well
- Sewer: Septic Tank
- Source: mfrmls
- Ownership: Fee Simple
This listing courtesy of Casandra Vann, KELLER WILLIAMS REALTY SMART
Monthly Payment
- Principal & Interest $
- Property Taxes $
- Home Insurance $
- VA Funding Fee $
Location
Schools Nearby
Polk City Elementary School
125 S Bougainvillea Ave, Polk City, FL, 33868
Grades PK-5
10.27 miles away
Citrus Ridge K-8 School
1775 Sand Mine Rd, Davenport, FL, 33897
Grades PK-8
10.52 miles away
Ridgeview Global Studies Academy
1000 Dunson Rd, Davenport, FL, 33896
Grades KG-10
12.72 miles away
