2970 Trailside Drive, Robins, IA 52328
Single-Family Home
Built in ——
0.44acre lot
—— car garage
$——/sqft
Listed 7 months ago
Property Description
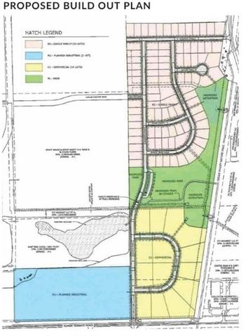
Introducing Robins Landing, the newest residential and planned walk ability lifestyle development in Robins, Iowa. Located along the Cedar Valley Nature Trail, with access from Tower Terrace Road and Robins Road. Plans for an approximate 16 acre Robins Landing Park is planned with the City Parks and Recreation department. The park and Cedar Valley Nature Trail will also have access to South Troy Park including the baseball and softball fields. This Planned Development will host retail that can utilize the trail and walking ability to housing. You may select your builder and timeline for construction. Standard and egress building sites, Cedar Rapids water, Robins sewer, USA Communications fiber and internet, Mid American gas, private trash, and within the development electric is REC or Alliant. Please confirm pending on the lot number. Harding, Hiawatha, Kennedy School District. 1,350 sq ft ranch minimum, 1,850 multi-level sq ft minimum. 0.3 Miles to Main Street in Robins, 2 Miles to County Home Rd, 2 Miles to I380. Immediate possession. $100 annual HOA fee, $100 start up fee.
- Listing Status:
- Pending
- Date Added:
- March 12, 2025 at 05:00AM
- Listing Office:
- SKOGMAN REALTY : 319-366-6427
- Listing Agent:
- Heather Morris : 319-366-6427
- MLS ID:
- 2501680
- Road/Access: Paved
- HOA Amenities: 100.0Annually
- Originating MLS: CDR_CDR
- County: Linn
- Zoning: Robins Landing North in the City of Robins LB 7911213-55017-00000
- Utilities: Electricity AvailableNatural Gas Available
- Water: Public
- Sewer: Public Sewer
- Source: CDR_CDR
This listing courtesy of Heather Morris, SKOGMAN REALTY
Monthly Payment
- Principal & Interest $
- Property Taxes $
- Home Insurance $
- VA Funding Fee $
Location
Schools Nearby
Hiawatha Elementary
603 Emmons St, Hiawatha, IA, 52233
Grades KG-5
2.50 miles away
Harding Middle School
4801 Golf St NE, Cedar Rapids, IA, 52402
Grades 6-8
3.32 miles away
Kennedy High School
4545 Wenig Rd NE, Cedar Rapids, IA, 52402
Grades 9-12
3.41 miles away






