24 Queensway Drive, Belleville, IL 62226
- 3 beds |
- 3 baths |
- 1,509 sqft
Single-Family Home
Built in 2025
9,148sqft lot
2 car garage
$166/sqft
Listed 3 months ago
Property Description
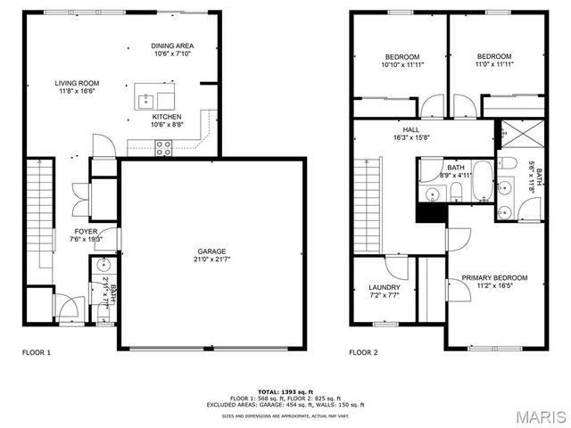
New Construction – Covington Floor Plan to be completed before end of the summer.This 3-bed, 3 bath home features an open layout with a spacious foyer leading to a great room and kitchen/dining combo. The kitchen features 30" soft-close cabinets, an island with undermount stainless sink, pantry, and half bath on the main level. Upstairs offers a large primary suite with walk-in closet, double vanity, and shower, plus two more bedrooms, a full bath, and laundry. Includes EV charger capability, 12x12 concrete patio with cedar column, 2-car garage. Price includes lot, tap fees, and all permits. Builder warranties: 1-year workmanship, 10-year structural.
- Listing Status:
- Active
- Date Added:
- July 26, 2025 at 05:00AM
- Listing Office:
- RE/MAX Results Realty : 618-216-4400
- MLS ID:
- 25047624

- Style: A-FrameTraditional
- Other Structures: Patio
- Parking: AttachedGarageParking spaces: 2
- Roofing: Composition
- General: Vinyl SidingTwoSlab
- Originating MLS: maris2
- School District: Belleville DIST 118
- County: St. Clair
- Zoning: MARIKNOLL 3RD ADD LOT/SEC-190 A0281159108-08.0-415-002
- Fencing: None
- Utilities: None
- Water: Public
- Sewer: Public Sewer
- Source: maris2
This listing courtesy of RE/MAX Results Realty
Monthly Payment
- Principal & Interest $
- Property Taxes $
- Home Insurance $
- VA Funding Fee $
Location
Schools Nearby
Belleville High School-West
4063 Frank Scott Pkwy W, Belleville, IL, 62223
Grades 9-12
2.43 miles away






