1719 W Foster Avenue, Chicago, IL 60640
- 3 beds |
- 5 baths |
- 3,790 sqft
Single-Family Home
Built in 2025
—— sqft lot
2 car garage
$374/sqft
Listed 1 day ago
Property Description
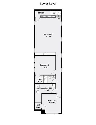
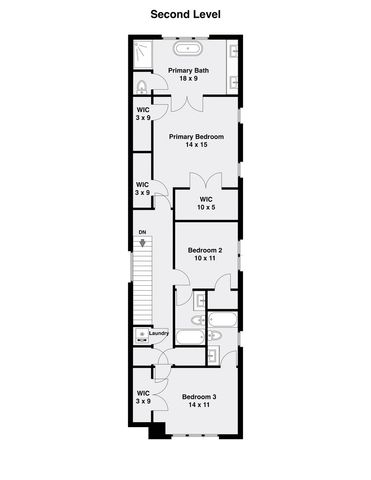
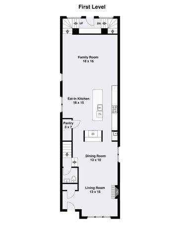
Impeccable 5 bedroom, 4.1 bath new construction single-family home steps from Clark Street in Andersonville. Spacious floor plan featuring design forward interiors with great consideration given to fixtures and finish materials. Open concept living/dining area with direct vent gas fireplace and beautiful oak hardwood flooring. Chef quality eat-in kitchen perfect for entertaining features Sub-Zero/Thermador appliances, oversized island, and butler pantry. Adjoining family room with ample windows overlooking the backyard. Rear mudroom with built-in storage. Primary bedroom with tons of closet space and spa like ensuite bath. Finished lower level includes spacious recreation room with full wet bar, two bedrooms, full bath, utilities/second laundry hookup, and radiant heated LVP flooring throughout. Vaulted ceilings in upper bedrooms, skylights, 8' doors, statement lighting, heated flooring, custom closets, and more! Extra long lot with back patio and a detached two-car garage with roof deck offer plenty of outdoor space. Close to restaurants, entertainment, shopping, public transportation, parks, and other great neighborhoods. Exceptional quality home by top developer. Staged photos are from the home next door which is the same floor plan and comparable finishes.
- Listing Status:
- Active
- Listing Office:
- Jameson Sotheby's Intl Realty : 773-368-3421
- Listing Agent:
- Jason O'Beirne : 773-368-3421
- MLS ID:
- 12510840

- General: Roof Deck
- Parking: Garage Door OpenerYesGarage OwnedDetachedGarageParking spaces: 2
- Roofing: Asphalt
- Windows: Skylight(s)
- General: 2 Stories
- HOA Amenities: ParkCurbsSidewalksStreet LightsStreet Paved0.0Not Applicable
- Originating MLS: mred
- School District: 299
- County: Cook
- Zoning: 14074030090000
- Water: Public
- Sewer: Public Sewer
- Source: mred
- Ownership: Fee Simple
This listing courtesy of Jason O'Beirne, Jameson Sotheby's Intl Realty
Monthly Payment
- Principal & Interest $
- Property Taxes $
- Home Insurance $
- VA Funding Fee $
Location
Schools Nearby
Asian Human Services -Passage Charter
1643 W Bryn Mawr Ave, Chicago, IL, 60660
Grades PK-8
0.52 miles away
Asian Human Services -Passage Charter
1643 W Bryn Mawr Ave, Chicago, IL, 60660
Grades PK-8
0.52 miles away
Amundsen High School
5110 N Damen Ave, Chicago, IL, 60625
Grades 9-12
0.37 miles away






