$230,000
38 W 125th Place, Chicago, IL 60628
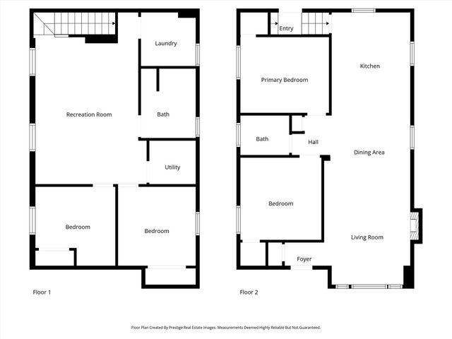
- 2 beds |
- 2 baths |
- 891 sqft
Single-Family Home
Built in 1956
5,532sqft lot
1 car garage
$258/sqft
Listed 8 days ago
Property Description
Spacious 4-bedroom, 2-bath home situated on an extra-large lot at the end of a quiet, no-through street. Fully rehabbed in 2021, including a brand-new garage and fence, this home offers a solid, move-in-ready structure. The interior just needs flooring and cosmetic updates to bring your personal style to life. Perfectly positioned on a desirable block, this property combines space, privacy, and potential-an ideal opportunity to create your dream home! Property is sold as is
- Listing Status:
- Active
- Listing Office:
- Keller Williams Preferred Rlty : 708-307-0777
- Listing Agent:
- Frank Montro : 708-307-0777
- MLS ID:
- 12500881

- Style: Bungalow
- Parking: AsphaltYesGarage OwnedDetachedGarageParking spaces: 1
- Roofing: Asphalt
- General: 1.5 StoryConcrete Perimeter
- HOA Amenities: 0.0Not Applicable
- Originating MLS: mred
- School District: 299
- County: Cook
- Zoning: 25284130460000
- Utilities: Circuit Breakers
- Water: Lake MichiganPublic
- Sewer: Public Sewer
- Source: mred
- Ownership: Fee Simple
This listing courtesy of Frank Montro, Keller Williams Preferred Rlty
Monthly Payment
$Est. Payment
- Principal & Interest $
- Property Taxes $
- Home Insurance $
- VA Funding Fee $
Location
Schools Nearby
O
Owens Community Academy
, Chicago, IL, 60628
Grades PK-8
0.10 miles away
O
Owens Community Academy
, Chicago, IL, 60628
Grades PK-8
0.10 miles away
C
Chicago Collegiate Charter School
11816 S Indiana Ave, Chicago, IL, 60628
Grades 5-12
0.93 miles away





