6924 W North Avenue, Chicago, IL 60707
- 6,100 sqft
other
Built in 1952
7,405sqft lot
—— car garage
$146/sqft
Listed 1 month ago
Property Description
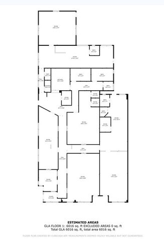
Exceptional opportunity in the growing Harlem & North Ave area. Located at the corner of North and Newland avenues, 3 blocks from the intersection of North and Harlem Ave and the new 60,000sf Rush Outpatient Facility and 2 blocks from new 200 residential units under construction at 1700 N Neva Ave. Well maintained 6100 SF structure was a licensed daycare facility for over 20 years. This property could be a TURNKEY purchase for a daycare operator and yet, the open area is easily altered to your business or investment needs. Thriving and vibrant stretch of North Ave in the Galewood/Northwest Oak Park corridor sees over 28,000 cars per day. Property features include 10 curb cut parking spaces immediately adjacent to the west side of the property plus 4 spaces in the rear. Building improvements include 10 exit doors, 9 separate rooms, 6 bathrooms (6 daycare height toilets) and a central 14x14 kitchen. Mechanical improvements include 3 HVAC units, new 2" copper water service, 600amp circuit breaker electric and structural updates to the portion of the building that has a bow-truss roof. Current daycare layout features 6 multipurpose rooms, 1 office that is wired for CCTV, 14x14 central kitchen and 18x18 storage room. Many possibilities for this fine location - daycare, retail, restaurant, medical and dental. Your business opportunities are unlimited on thriving North Avenue!
- Listing Status:
- Active
- Listing Office:
- Gullo & Associates : 708-567-1375
- Listing Agent:
- David Gullo : 708-567-1375
- MLS ID:
- 12480158

- Road/Access: City Street
- Originating MLS: mred
- County: Cook
- Zoning: 13313250240000
- Current Use: Commercial
- Utilities: Circuit BreakersService - 201 to 600 Amps
- Source: mred
This listing courtesy of David Gullo, Gullo & Associates
Monthly Payment
- Principal & Interest $
- Property Taxes $
- Home Insurance $
- VA Funding Fee $
Location
Schools Nearby
Sayre Elementary Language Academy
1850 N Newland Ave, Chicago, IL, 60707
Grades PK-8
0.32 miles away
Sayre Elementary Language Academy
1850 N Newland Ave, Chicago, IL, 60707
Grades PK-8
0.32 miles away
Steinmetz College Prep High School
3030 N Mobile Ave, Chicago, IL, 60634
Grades 9-12
1.96 miles away


