1530 S 61st Avenue, Cicero, IL 60804
- 4 beds |
- 1 bath |
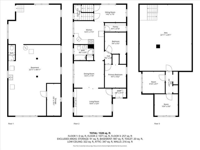
- 2,003 sqft
Single-Family Home
Built in 1923
—— sqft lot
2 car garage
$167/sqft
Listed 4 days ago
Property Description
Old world charm meets modern updates in this all brick bungalow. Step into the vestibule with original tile floor and French glass door that leads to the Living Room. There are 3 beautiful stained glass windows and the original oak mantle with built-in bookcases and stained glass doors. The decorative maple archway between the living and dining room keeps the integrity of the home. The bathroom has been updated with new fixtures, lighting and tile. The kitchen, breakfast room and two bedrooms have laminate flooring and ceiling fans. The second floor has two bedrooms. The basement is unfinished. Upgrades include: Roof tear-off 2013, All windows replaced 2014, Furnace 2015, New 2 1/2 car garage 2017, Hot water heater 2023, Updated electric 2025. New owner to assume the Town of Cicero Compliance requirements which are found with disclosures. Home is being "SOLD AS IS". t
- Listing Status:
- Active
- Listing Office:
- Gaslight Realty : 708-447-7744
- Listing Agent:
- Joan Wiaduck : 312-518-9939
- MLS ID:
- 12509042

- Style: Bungalow
- Parking: Garage Door OpenerYesGarage OwnedDetachedGarageParking spaces: 2
- Roofing: Asphalt
- General: 1.5 StoryConcrete Perimeter
- HOA Amenities: Not Applicable
- Originating MLS: mred
- School District: 299
- County: Cook
- Zoning: 16201280320000
- Utilities: Circuit Breakers
- Water: Lake Michigan
- Sewer: Public Sewer
- Source: mred
- Ownership: Fee Simple
This listing courtesy of Joan Wiaduck, Gaslight Realty
Monthly Payment
- Principal & Interest $
- Property Taxes $
- Home Insurance $
- VA Funding Fee $
Location
Schools Nearby
J Sterling Morton East High School
2423 S Austin Blvd, Cicero, IL, 60804
Grades 10-12
0.86 miles away






