7163 & 7165 W Tulip Street, Bloomington, IN 47404
- 4 beds |
- 2 baths |
- 1,514 sqft
Duplex
Built in 1969
0.48acre lot
—— car garage
$175/sqft
Listed 16 hours ago
Property Description
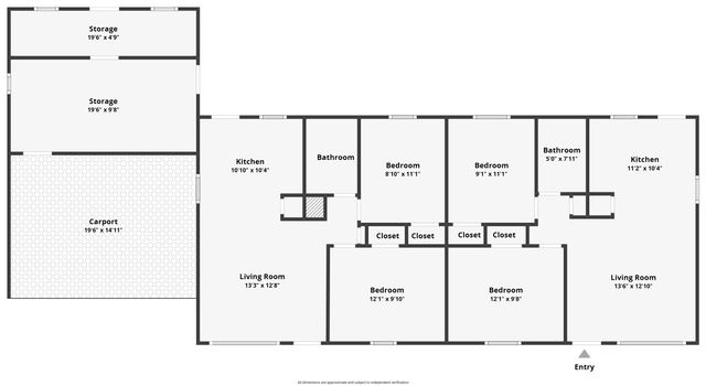
Property with incredible income potential! This duplex features two 624 square foot units each including 2 bedrooms, a living room, an eat-in kitchen and a full bath. Built by Kenton Robinson in 1969 it has been meticulously updated by its current owner with extensive documentation ready to share! Prior to the current owner both units in this duplex were rented. But considering the location with almost a half acre lot, beautiful garden beds and trees nestled in a residential cul-de-sac, this property presents a wonderful opportunity to be owner occupied with the second unit rented for income as the current owner has done! The possibilities are endless with this special property! Updates include but not limited to vinyl flooring, 2 furnaces, 2 air conditioners, concrete pad and mini barn, carport including a partially finished flex space with electricity and wood stove heating, and extensive landscaping with more ROI opportunities for a new owner as well!
- Listing Status:
- Active
- Date Added:
- November 4, 2025 at 06:00AM
- Listing Office:
- The Indiana Team LLC : 812-961-8000
- Listing Agent:
- Rose-Antoinette Seiwert : 812-219-0976
- MLS ID:
- 202544680
- General: AluminumBrickVinyl
- Style: One Story
- Other Structures: Outbuilding
- Parking: Parking spaces: 2
- School District: Richland-Bean Blossom Community Schools
- Zoning: 007-13990-00 PT NE SE 16-9-2W .48A PLAT 3753-04-16-400-023.000-011
This listing courtesy of Rose-Antoinette Seiwert, The Indiana Team LLC
Monthly Payment
- Principal & Interest $
- Property Taxes $
- Home Insurance $
- VA Funding Fee $
Location
Schools Nearby
Edgewood Intermediate School
7600 W Reeves Rd, Bloomington, IN, 47404
Grades 3-5
1.43 miles away
Edgewood Junior High School
851 W Edgewood Dr, Ellettsville, IN, 47429
Grades 6-8
1.45 miles away
Edgewood High School
601 S Edgewood Dr, Ellettsville, IN, 47429
Grades 9-12
1.56 miles away
