168 Velvet Hat Road, Danville, IN 46122
- 5 beds |
- 3 baths |
- 2,600 sqft
Single-Family Home
Built in 2024
7,841sqft lot
2 car garage
$146/sqft
Listed 1 year ago
Property Description
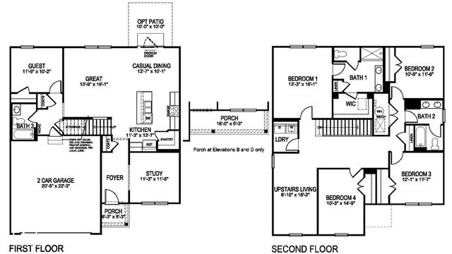
New Move-In Ready by D.R. Horton! Welcome to the Henley in Miles Farm. This two-story home provides 5 large bedrooms and 3 full baths. One bedroom and bath are on main floor. The staircase enters from the family room for convenience and privacy. The kitchen offers beautiful cabinetry, a large pantry, quartz countertops and a built-in island. Also on the main level, you'll find a spacious study, perfect for an office space. Upstairs, you'll find 4 additional bedrooms, including the main bedroom with walk-in closet & full bath with large luxe shower. The 2nd living space can be used as a great entertainment space. Community includes nature trails, playground, covered picnic pavilion, amenity Center/Event Space, pickleball court, fire pit, splash pad and more! Relish the close proximity to the all the Danville schools as well as the conveniences along Main Street and in neighboring communities including Avon and Plainfield. The charming town of Danville has much to offer such as Ellis Park, Twin Bridges Golf Club, Beasley's Orchard, Gill Family Aquatic Center and more! Home includes America's Smart Home Technology featuring a smart video doorbell, smart Honeywell thermostat, Amazon Echo Pop, smart door lock, Deako plug 'n play light switches and more.
- Listing Status:
- Pending
- Listing Office:
- DRH Realty of Indiana, LLC : 317-797-7036
- Listing Agent:
- Frances Williams : 317-797-7036
- MLS ID:
- 21998868

- General: High CeilingsKitchen IslandHi-Speed Internet AvailblPantrySmart ThermostatWalk-In Closet(s)Wood Work Painted
- Appliances: DishwasherElectric Water HeaterDisposalMicroHoodGas OvenRefrigerator
- Laundry: Upper Level
- A/C: Central Air
- Heating: Natural Gas
- Style: Traditional
- Other Structures: Patio
- Parking: Attached
- General: TwoSlab
- HOA Amenities: Basketball CourtClubhouseParkPicnic AreaPlaygroundPoolTrail(s)Association Builder ControlsClubhouseEntrance CommonInsuranceMaintenanceParkPlaygroundManagementWalking Trails495.0Annually
- Originating MLS: mibor
- School District: Danville Community School Corp
- County: Hendricks
- Zoning: LOT 571 MILES FARM SECTION 1 FINAL PLAT 0.18 AC 24/25 PT FROM 017-204512-310100321105476031000003
- Water: Public
- Source: mibor
This listing courtesy of Frances Williams, DRH Realty of Indiana, LLC
Monthly Payment
- Principal & Interest $
- Property Taxes $
- Home Insurance $
- VA Funding Fee $
Location
Schools Nearby
North Elementary School
398 Urban St, Danville, IN, 46122
Grades KG-4
4.08 miles away
Danville Middle School
1425 W Lincoln St, Danville, IN, 46122
Grades 4-9
4.59 miles away
Danville Community High School
100 Warrior Way, Danville, IN, 46122
Grades 9-12
4.26 miles away






