1307 Fleming Drive, Greenfield, IN 46140
- 5 beds |
- 3 baths |
- 2,600 sqft
Single-Family Home
Built in 2025
8,276sqft lot
2 car garage
$136/sqft
Listed 3 months ago
Property Description
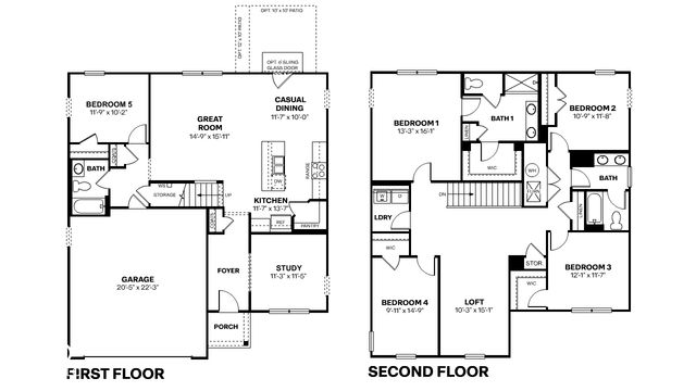
D.R. Horton presents the enchanting Henley at Brunson's Landing, where contemporary comfort meets timeless elegance! This exquisite two-story haven boasts five spacious bedrooms and three lavish full baths, ensuring ample space for family and guests alike. The cleverly designed main floor hosts a cozy bedroom and bath, ideal for visitors or multi-generational living. A graceful staircase ascends from the family room, offering both convenience and an air of sophistication. The gourmet kitchen is a culinary dream, adorned with pristine white cabinetry, sleek quartz countertops, and a generous pantry. A built-in island provides ample seating, perfect for casual gatherings. A sunlit study on the main level offers a tranquil retreat, be it for work or reflection. Venture upstairs to discover four additional bedrooms, one featuring an expansive walk-in closet, and a versatile second living space, perfect for a home office, study, or creative sanctuary. Embrace modern living with America's Smart Home Technology, including a smart video doorbell, Honeywell thermostat, smart door lock, and Deako smart light package, making life as seamless as it is stylish. Enjoy spending time at the community playground, shelter with grills or strolling along the walking trails. Brunson's Landing is conveniently located in Greenfield-Central School District and close to Lark Ranch, Hancock County Public Library, sports parks, historic downtown Greenfield and the Pennsy Trail.
- Listing Status:
- Pending
- Listing Office:
- DRH Realty of Indiana, LLC : 317-797-7036
- Listing Agent:
- Frances Williams : 317-797-7036
- MLS ID:
- 22053302

- General: Kitchen IslandHi-Speed Internet AvailblPantrySmart ThermostatWalk-In Closet(s)Wood Work Painted
- Appliances: DishwasherElectric Water HeaterDisposalMicroHoodGas OvenRefrigerator
- Laundry: Upper Level
- A/C: Central Air
- Heating: Natural Gas
- Style: Traditional
- Other Structures: Covered
- Parking: Attached
- General: TwoSlab
- HOA Amenities: Picnic AreaPlaygroundTrail(s)Association Builder ControlsAssociation Home OwnersEntrance CommonInsuranceMaintenanceParkPlaygroundManagementWalking Trails550.0Annually
- Originating MLS: mibor
- School District: Greenfield-Central Com Schools
- County: Hancock
- Zoning: Brunsons Landing Sec 1 Lot 40300730400001040009
- Water: Public
- Source: mibor
This listing courtesy of Frances Williams, DRH Realty of Indiana, LLC
Monthly Payment
- Principal & Interest $
- Property Taxes $
- Home Insurance $
- VA Funding Fee $
Location
Schools Nearby
Weston Elementary School
140 Polk Ave, Greenfield, IN, 46140
Grades KG-3
0.97 miles away
Greenfield Central Junior High School
1440 N Franklin St, Greenfield, IN, 46140
Grades 7-8
0.26 miles away
Greenfield-Central High School
810 N Broadway St, Greenfield, IN, 46140
Grades 9-12
0.82 miles away






