820 Lester Avenue, Saint Joseph, MI 49085
- 59,000 sqft
Commercial Property
Built in 1965
4.37acre lot
—— car garage
$25/sqft
Listed 1 year ago
Property Description
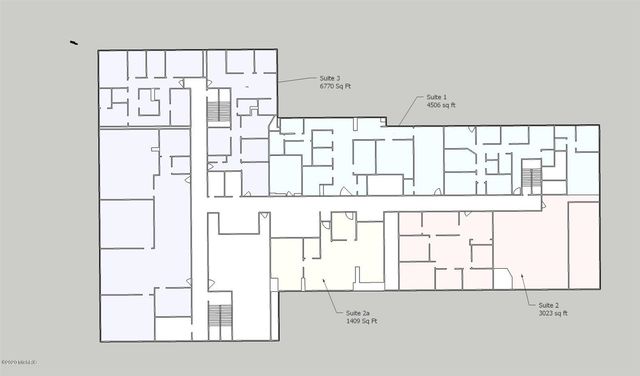
St Joseph Mi professional/office/ medical building for sale. Incredible value with recent price reduction. Over 50,000 s. of space, 325 parking spots on 4.4 acres of land. Minutes from downtown St. Joseph, convenient to highways. Space includes large training areas, office space, lab space, lobbies, common area restrooms and unlimited possibilities if conversion needed. Features includes handicap accessibility, 2 passenger elevators, 3 loading docks/wells, security system, central air, lots of natural light and windows and unbeatable location. Lunch is never too far away, located near an abundance of restaurants and eateries and the beautiful Lake Michigan Shoreline!
- Listing Status:
- Active
- Listing Office:
- O'Brien Real Estate : 269-381-6470
- Listing Agent:
- Pat O'Brien :
- MLS ID:
- 70419319

- Parking: 100+ Spaces
- Roofing: Rubber
- General: BlockOtherSteel SidingStucco
- Road/Access: City/County
- Originating MLS: MiRealSource
- County: Berrien
- Zoning: Available from Broker
- Source: MiRealSource
This listing courtesy of Pat O'Brien, O'Brien Real Estate
Monthly Payment
- Principal & Interest $
- Property Taxes $
- Home Insurance $
- VA Funding Fee $
Location
Schools Nearby
Lincoln School
1102 Orchard Ave, Saint Joseph, MI, 49085
Grades PK-5
0.69 miles away
Upton Middle School
800 Maiden Ln, Saint Joseph, MI, 49085
Grades 6-8
2.42 miles away
St. Joseph High School
2521 Stadium Dr, Saint Joseph, MI, 49085
Grades 9-12
0.54 miles away
