205 S King Street, Windsor, NC 27983
- 5 beds |
- 4 baths |
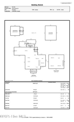
- 3,079 sqft
Single-Family Home
Built in 1925
0.63acre lot
—— car garage
$57/sqft
Listed 24 days ago
Property Description
Step back in time to the historic Rascoe house, a unique testament to early 20th-century craftsmanship, located at 205 S King St, Windsor, NC. Built in mid 1920's, this home is a rare find, constructed with oak timber milled from the Rascoe farm in Indian Woods NC. With 10-foot ceilings and wide plank hardwood floors, sturdy, well-built construction, this five-bedroom, three-bathroom residence offers a canvas for those with vision and creativity. A sense of history permeates each room, inviting you to create your own chapter in its storied past. This property is perfect for those seeking a project with potential, as special renovation loans are available through our preferred lender. Imagine the possibilities of transforming this space into a personalized masterpiece while enjoying its historic charm. Walking distance to downtown, park & mini-zoo, tennis courts, Cashie river & 2 river walks, ballpark, 3 churches, community building, Police & Sheriff's offices, Bertie County courthouse & county complex, approximately 2 miles from hospital and shopping center Schedule your private tour now with a local Real Estate Agent and explore this exceptional home and discover the potential that awaits you! Opportunities like this are seldom found. Details: 3079+/-sq ft & 410+ sq ft unfinished attic, 5 bedrooms, 3 full bathrooms. Extras: 20' x 20' detached building with electric and hardwood floor (painted) that can be used as a workshop, playhouse, storage or can be finished into a office, an ADU, or in-Law retreat, etc... 8' x 9' two story detached building that can be used for small workshop, storage, playhouse or converted back into a smokehouse. Detached 2 car garage with electric & 2 workshop rooms (9' x 9', 8' x 9') Details on Agent Document section
- Listing Status:
- Active
- Listing Office:
- Bohlmann& Bohlmann LLC : 919-434-4100
- MLS ID:
- 100535424

- General: Shed(s)StorageWorkshop
- Style: Historic District
- Other Structures: Shed(s)StorageWorkshopPorchPatio
- Parking: Garage Faces FrontConcreteParking spaces: 2
- Roofing: Shingle
- General: See RemarksVinyl SidingTwoBrick/MortarCrawl Space
- Road/Access: City StreetState Road
- Originating MLS: Hive MLS
- County: Bertie
- Zoning: R-5 Single & 2 Family ResRascoe Home & Lot ( See Doc section )6802-73-7823
- Fencing: None
- Utilities: Sewer ConnectedWater Connected
- Water: PublicPublic2
- Sewer: Public Sewer
- Source: Hive MLS
This listing courtesy of Bohlmann& Bohlmann LLC
Monthly Payment
- Principal & Interest $
- Property Taxes $
- Home Insurance $
- VA Funding Fee $
Location
Schools Nearby
Windsor Elementary School
104 Cooper Hill Rd, Windsor, NC, 27983
Grades PK-5
1.46 miles away
Bertie Middle School
652 US Highway 13 N, Windsor, NC, 27983
Grades 6-8
3.71 miles away
Bertie High School
716 US Highway 13 N, Windsor, NC, 27983
Grades 9-12
4.00 miles away
