11609 Detroit Avenue, Cleveland, OH 44102
other
Built in 1916
5,406sqft lot
—— car garage
$——/sqft
Listed 1 year ago
Property Description
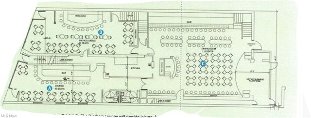
The Brothers Lounge, located at 11609 Detroit Avenue in Cleveland, Ohio, has been a Cleveland landmark since 1959. Founded by Fred and Ed Sabath, The Brothers Lounge is the oldest music club in Cleveland. It was known for its quality ethnic foods, and great jazz and blues music. The Brothers Lounge has seen on its stage national performers such as BB King, Bonnie Raitt, Buddy Guy, and Anton Figg (drummer for Dave Letterman), to name a few. It was the place where national performers could feel at home and mix with Cleveland's "local talent." American blues legend Robert Lockwood, Jr. started performing regularly at The Brothers Lounge in 1977 and continued to do so until 1990. In 2004, the current owner, Christian Riemenschneider bought the building and contents with the goal of resurrecting The Brothers Lounge as a Cleveland landmark. Riemenschneider masterfully renovated the space, utilizing every square inch to its highest and best use, employing top-of-the-line materials and unparalleled craftsmanship, and equipping it with state-of-the-art sound & security technology, all while meticulously preserving the club's original character and inimitable charm.
- Listing Status:
- Active
- Listing Office:
- eAgent Real Estate Corp. : 440-391-2340
- Listing Agent:
- Thomas A Weigel Jr. : 440-391-2340
- MLS ID:
- 5035948

- Parking: Off SiteOn Street
- General: 2Basement
- Originating MLS: NOWDD
- School District: Cleveland Municipal - 1809
- County: Cuyahoga
- Zoning: 9 OLD&BCO 0001 NP001-24-010
- Current Use: CommercialMixed UseSee Remarks
- Water: Public
- Sewer: Public Sewer
- Source: NOWDD
This listing courtesy of Thomas A Weigel Jr., eAgent Real Estate Corp.
Monthly Payment
- Principal & Interest $
- Property Taxes $
- Home Insurance $
- VA Funding Fee $
Location
Schools Nearby
Louisa May Alcott Elementary School
10308 Baltic Rd, Cleveland, OH, 44102
Grades KG-5
0.56 miles away
Marion C. Seltzer PreK-8 School
1468 W 98th St, Cleveland, OH, 44102
Grades PK-8
0.92 miles away
The School of One
3575 W 130th St, Cleveland, OH, 44111
Grades 9-12
1.90 miles away




