11200 Market Street, North Lima, OH 44452
- 3 beds |
- 1 bath
Single-Family Home
Built in 1925
65.24acre lot
—— car garage
$——/sqft
Listed 9 months ago
Property Description
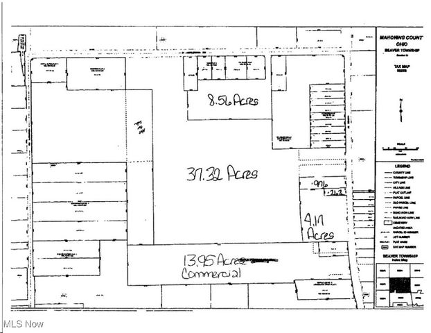
An EXTRAORDINARY Opportunity awaits with this AMAZING 65+ Acre Property with 2 Investment Properties & a 13+ Acre Commercial Parcel. Nestled in a TRANQUIL Setting, this Property Includes 2 Small Houses on Market Street plus 5 separate parcels of a Scenic, Wooded Parklike Paradise. This could be a Farm, Horse Ranch, or your own Private Utopia to build your perfect home. Parcel Numbers Include: 05-006-0-001.00-0, 05-006-0-003.00-0, 05-006-0-004.00-0, 05-006-0-005.00-0, 05-006-0-006.00-0, 05-006-0-022.00-0. Public Utilities are Available off Market Street - Electric, Gas, Water, Sewer, & Cable. Investment Property Addresses are: 11216 Market Street - 2144 Sq. Ft. Cape Cod. 11200 Market Street - 1518 Sq. Ft. Cape Cod. Both properties are vacant but were occupied last year. Rental Properties are being sold in their "as is" condition. All Parcels Include: 05-006-0-001.00-0, 05,006-0-003.00-0, 05-006-0-004.00-0, 05-006-0-005.00-0, 05-006-0-006.00-0, & 05,006-0-022.00-0
- Listing Status:
- Pending
- Listing Office:
- Keller Williams Chervenic Rlty : 330-967-4300
- Listing Agent:
- Holly Ritchie : 330-360-5323
- MLS ID:
- 5095771

- A/C: None
- Heating: Forced AirGas
- Fireplace: Fireplaces: 0
- Style: Cape Cod
- Parking: Unpaved
- Roofing: Asphalt
- General: Frame2
- Originating MLS: NOWDD
- School District: South Range LSD - 5009
- County: Mahoning
- Zoning: SEC 1405-006-0-005.00-0
- Water: Public
- Sewer: Public Sewer
- Source: NOWDD
This listing courtesy of Holly Ritchie, Keller Williams Chervenic Rlty
Monthly Payment
- Principal & Interest $
- Property Taxes $
- Home Insurance $
- VA Funding Fee $
Location
Schools Nearby
South Range Elementary School
11300 Columbiana Canfield Rd, Canfield, OH, 44406
Grades KG-4
4.36 miles away
South Range Middle School
11300 Columbiana Canfield Rd, Canfield, OH, 44406
Grades 5-8
4.36 miles away
South Range High School
11300 Columbiana Canfield Rd, Canfield, OH, 44406
Grades 9-12
4.36 miles away
