11221 Pearl Road 8, Strongsville, OH 44136
Commercial Property
Built in 1978
0.87acre lot
—— car garage
$——/sqft
Listed 9 months ago
Property Description
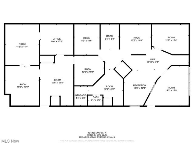
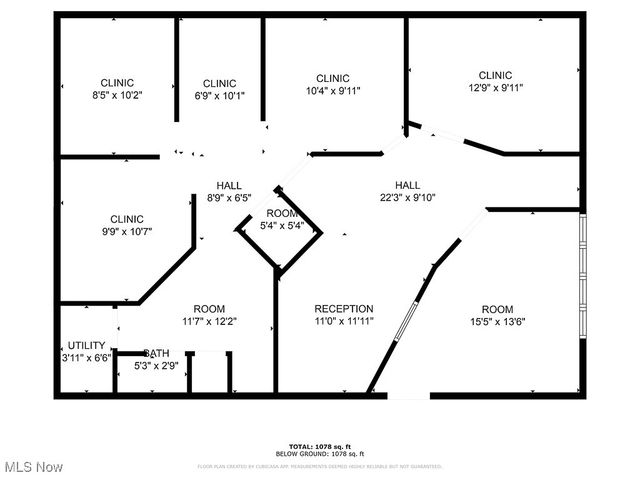
This 1,800-square-foot commercial office space is situated on the lower level of a two-story building at 11221 Pearl Road in Strongsville, Ohio. Previously configured as a dental office with multiple offices plumbed with sinks. All water lines are controlled by an electronic water shut to for convenience. The space is adaptable for various professional uses, including medical, dental, or general office purposes. The layout can be customized to accommodate 5 to 15 personnel, offering flexibility to suit different business needs. Anchor tenant is Citizens Bank which brings good visibility to other tenants. Close to major shopping centers and Route 82.
- Listing Status:
- Active
- Listing Office:
- Keller Williams Elevate : 440-572-1200
- Listing Agent:
- Robert Damm : 440-241-2179
- MLS ID:
- 5093230

- Parking: DrivewayOn SiteOutsidePaved
- Roofing: AsphaltFiberglassFlat
- Originating MLS: NOWDD
- School District: Strongsville CSD - 1830
- County: Cuyahoga
- Zoning: 392-21-009
- Current Use: Medical/Dental
- Water: Public
- Sewer: Public Sewer
- Source: NOWDD
This listing courtesy of Robert Damm, Keller Williams Elevate
Monthly Payment
- Principal & Interest $
- Property Taxes $
- Home Insurance $
- VA Funding Fee $
Location
Schools Nearby
Muraski Elementary School
20270 Royalton Rd, Strongsville, OH, 44149
Grades KG-5
1.16 miles away
Strongsville Middle School
13200 Pearl Rd, Strongsville, OH, 44136
Grades 6-8
0.86 miles away
Strongsville High School
20025 Lunn Rd, Strongsville, OH, 44149
Grades 9-12
1.89 miles away



