315 9th St, New Brighton, PA 15066
Commercial Property
Built in 1890
3,485sqft lot
—— car garage
$——/sqft
Listed 4 months ago
Property Description
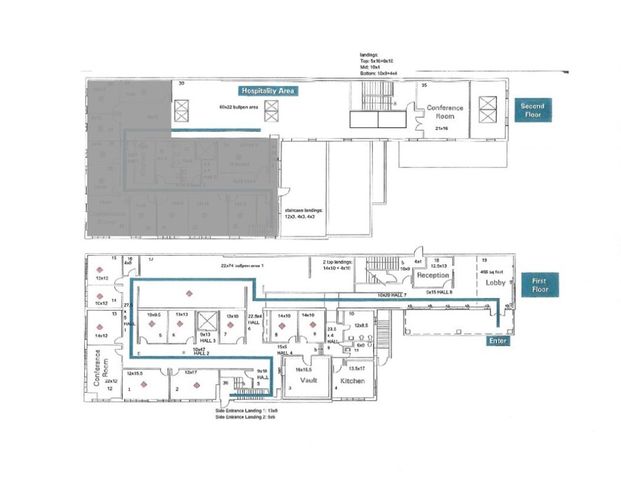
Welcome to 315 9th St in the heart of downtown New Brighton. With over 7,500 square feet of flexible office space available, there are many possibilities to make this premier professional space work for you and your company! The first floor (5800+ sq ft) hosts a beautiful reception area, large furnished bullpen with cubicles, 10 offices, conference room, plenty of storage, a break room and two restrooms. The second floor (1700+ sq ft) features an oversized conference room, kitchenette, two restrooms, and a large furnished bull pen area. There are options/configurations to lease some or all of this space. All utilities included. Plenty of on-street parking. Furniture can remain, or be removed.
- Listing Status:
- Active
- Listing Office:
- RE/MAX SELECT REALTY : 724-933-6300
- Listing Agent:
- Gregory Salopek : 724-933-6300
- MLS ID:
- 1709501

- Zoning: C-1
- Source: WESTPENN
This listing courtesy of Gregory Salopek, RE/MAX SELECT REALTY
Monthly Payment
- Principal & Interest $
- Property Taxes $
- Home Insurance $
- VA Funding Fee $
Location
Schools Nearby
New Brighton Elementary School
3200 43rd St, New Brighton, PA, 15066
Grades KG-5
0.63 miles away
New Brighton Middle School
901 Penn Ave, New Brighton, PA, 15066
Grades 6-8
0.38 miles away
New Brighton Area High School
3202 43rd St, New Brighton, PA, 15066
Grades 9-12
0.61 miles away






