5870 MONK HOUSE RD, Somerville, TN 38068
- 4 beds |
- 2 baths |
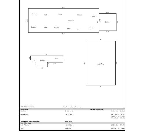
- 3,564 sqft
Single-Family Home
Built in 1979
25.4acre lot
—— car garage
$217/sqft
Listed 2 months ago
Property Description
Discover country living at its finest! This spacious 4-bedroom, 2.5-bath home with a bonus room offers over 3,500 heated sq. ft. on 25.4 acres and features a complete kitchen remodel with new cabinets, butcher block island, farm sink, and a commercial gas stove with double oven. New tile flooring in all common areas, recessed lighting, and Simonton windows provide modern comfort. A large main-level office, oversized laundry room, huge walk-in attic, high-quality air purification systems, wireless booster, and driveway alarm add everyday convenience. Outdoor living shines with a Yoderbilt greenhouse, 60x40 shop with electric, extensive garden beds, chicken coops, a private pond, and sparkling pool. A producing orchard with apples, pears, figs, berries, and more makes this property a true homestead retreat!
- Listing Status:
- Active
- Date Added:
- August 23, 2025 at 12:00AM
- Listing Office:
- Crye-Leike, Inc., REALTORS : 901-372-3690
- MLS ID:
- 10204171
- General: Brick VeneerR-Factor (See Remarks)Double Pane Window(s)Storm Window(s)Other (See Remarks)PorchGreenhouse
- Style: Traditional
- Pool: Above Ground
- Parking: Driveway/PadWorkshop(s)Parking spaces: 2
- Roofing: Other (See REMARKS)
- General: 1Conventional
- County: Somerville/ East
- Zoning: 112 112 03000
- Water: Electric Water Heater2+ Water HeatersWell WaterSeptic Tank
- Sewer: Electric Water Heater2+ Water HeatersWell WaterSeptic Tank
This listing courtesy of Crye-Leike, Inc., REALTORS
Monthly Payment
- Principal & Interest $
- Property Taxes $
- Home Insurance $
- VA Funding Fee $
Location
Schools Nearby
Buckley-Carpenter Elementary School
12580 S Main St, Somerville, TN, 38068
Grades PK-5
6.30 miles away
East Junior High School
400 Leach Dr, Somerville, TN, 38068
Grades 6-8
9.30 miles away
Fayette-Ware High School
13520 Highway 59, Somerville, TN, 38068
Grades 9-12
9.26 miles away
