1427 Capitol Reef, Converse, TX 78109
- 5 beds |
- 3 baths |
- 1,892 sqft
Single-Family Home
Built in 2025
4,792sqft lot
—— car garage
$158/sqft
Listed 1 month ago
Property Description
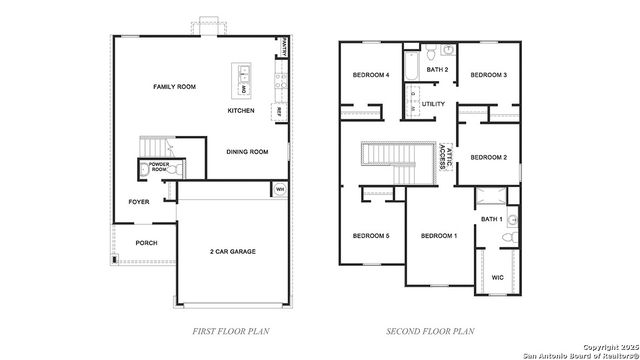
The Franklin plan is one of our two-story homes featured in Sereno Springs in Converse, TX. This new home layout offers 2 classic front exteriors, 5 bedrooms, 2.5 baths, 2 car-garage and 1891 square feet of comfortable living. Step inside The Franklin to find an elongated foyer opening to an open concept living room, kitchen, and dining area. The gourmet kitchen faces the living area so you don't miss a thing while cooking and includes quartz counter tops, stainless steel appliances and shaker style cabinetry. The main bedroom is located toward the front of the home on the second story and features an attractive attached bathroom with a walk-in shower, quartz countertops, a grand walk-in closet and plenty of storage space. The second story includes all secondary bedrooms, and two full bathrooms. You'll have carpeted floors in every bedroom and sheet vinyl flooring in your bathrooms and utility room. Additional features include sheet vinyl flooring in entry, living room, and all wet areas, quartz counter tops in all bathrooms and HOME IS CONNECTED base package. Using one central hub that talks to all the devices in your home, you can control the lights, thermostat and locks, all from your cellular device.
- Listing Status:
- Pending
- Date Added:
- October 2, 2025 at 05:00AM
- Listing Office:
- Keller Williams Heritage : (210) 493-3030
- Listing Agent:
- R.J. Reyes : (210) 842-5458
- MLS ID:
- 1912251
- General: One Living AreaSeparate Dining RoomIsland KitchenBreakfast BarAll Bedrooms UpstairsOpen Floor PlanLaundry Upper LevelLaundry RoomWalk in ClosetsAttic - Pull Down Stairs
- Flooring: CarpetingVinyl
- A/C: One Central
- Heating: CentralNatural Gas
- Fireplace: Not Applicable
- Eco/Green Feature: 13-15 SEER AXProgrammable ThermostatDouble Pane WindowsRadiant BarrierLow E Windows
- General: BrickSidingCovered PatioPrivacy FenceSprinkler SystemDouble Pane Windows
- Style: Two Story
- Pool: None
- Roofing: Composition
- Windows: All Remain
- General: TwoSlab
- HOA Amenities: 105.0Quarterly
- School District: East Central I.S.D
- County: Bexar
- Zoning: Block 62 Lot 23
- Utilities: CPS
- Water: Water SystemSewer System
- Sewer: SARA
This listing courtesy of R.J. Reyes, Keller Williams Heritage
Monthly Payment
- Principal & Interest $
- Property Taxes $
- Home Insurance $
- VA Funding Fee $
Location
Schools Nearby
Converse Elementary School
6720 FM 1516 N, Converse, TX, 78109
Grades PK-5
0.71 miles away
Judson Middle School
9695 Schaefer Rd, Converse, TX, 78109
Grades 6-8
1.20 miles away
Judson Care Academy
102 School St, Converse, TX, 78109
Grades 9-10
0.65 miles away






