$6,000
17539 Matany Road, Justin, TX 76247
Commercial Property
Built in ——
2.34acre lot
—— car garage
$——/sqft
Listed 1 month ago
Property Description
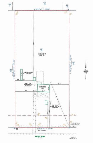
Cleared lot for parking. Completely fenced and gated with gravel base on the entire 2.33 acres. Close to 156 and 114 for easy access. Minimum twelve month NNN lease. Owner is licensed with the Texas Real Estate Commission.
- Listing Status:
- Active
- Listing Office:
- CENTURY 21 Judge Fite Co. : 817-220-6462
- Listing Agent:
- Lori Mayo :
- MLS ID:
- 21062800

- General: Other1
- Road/Access: County Road
- Originating MLS: NTR
- County: Denton
- Zoning: HANBY VIEW ESTATES LOT 34 MH LABEL # TEX00007R87631
- Utilities: Electricity Available
- Source: NTR
This listing courtesy of Lori Mayo, CENTURY 21 Judge Fite Co.
Monthly Payment
$Est. Payment
- Principal & Interest $
- Property Taxes $
- Home Insurance $
- VA Funding Fee $
Location
Schools Nearby
C
Clara Love Elementary School
16301 Elementary Dr, Justin, TX, 76247
Grades PK-5
0.77 miles away
C
C.W. Worthington Middle School
2001 Texan Dr, Justin, TX, 76247
Grades 6-8
0.86 miles away
N
Northwest High School
2301 Texan Dr, Justin, TX, 76247
Grades 9-12
1.07 miles away
