4674 Azle Highway, Weatherford, TX 76085
- 4 beds |
- 3 baths |
- 2,496 sqft
Single-Family Home
Built in 2024
5acre lot
1 car garage
$172/sqft
Listed 12 days ago
Property Description
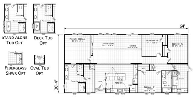
Discover your private 5-acre retreat at the end of a quiet country road, about a mile from the main road. The gated entrance sits all the way at the end, offering unmatched privacy and seclusion surrounded by mature trees. This property provides true peace and the freedom of country living with no restrictions. Fully fenced and ready for horses, gardening, or building anything you desire, the land is both functional and full of opportunity. The main residence is a stunning, energy-efficient 2,112 sq. ft. manufactured home built in 2024, featuring modern finishes, open living spaces, and a thoughtful layout. The primary suite includes a double-sink vanity, freestanding tub, separate shower, and a massive 16-by-6-foot walk-in closet. A spacious laundry room adds convenience to everyday living. Just steps away, the versatile guest house offers excellent potential for long-term or short-term rental income. Currently used as a fully equipped gym with two lofts, it can easily be converted back into a comfortable private guest suite or rental unit. The 625 sq. ft. metal workshop is powered and already has a water line installed—just add a hose bib if desired. This flexible space is perfect for hobbies, storage, business use, or could even be converted into another income-producing area. The property also includes two RV hookups, creating additional options for visiting family, friends, or even generating extra income by hosting campers or RV users. With a private well, no HOA, and no restrictions, the possibilities are endless—ideal for multi-generational living, investment, or those seeking a peaceful homestead with room to grow. Despite its secluded setting, you’ll enjoy quick access to Weatherford, Azle, and Fort Worth for shopping, dining, and commuting. Don’t miss this rare opportunity to own a versatile property that perfectly blends privacy, potential, and modern country comfort.
- Listing Status:
- Active
- Listing Office:
- Ready Real Estate LLC : 817-681-5180
- Listing Agent:
- Gayla Craft :
- MLS ID:
- 21072188

- Pool: None
- Parking: Workshop in Garage
- General: 1
- Originating MLS: NTR
- School District: Weatherford ISD
- County: Parker
- Zoning: ACRES: 5.000 ABST: 2259 SURVEY: SIMMONS A WR000115529
- Utilities: Septic Available
- Sewer: Aerobic Septic
- Source: NTR
- Exclusions: Mineral Rights
This listing courtesy of Gayla Craft, Ready Real Estate LLC
Monthly Payment
- Principal & Interest $
- Property Taxes $
- Home Insurance $
- VA Funding Fee $
Location
Schools Nearby
Mary Martin Elementary School
719 N Oakridge Dr, Weatherford, TX, 76087
Grades PK-5
2.76 miles away
Joe M. TIson Middle School
102 Meadowview Rd, Weatherford, TX, 76087
Grades 6-8
4.22 miles away
Weatherford Ninth Grade Center
, Weatherford, TX, 76086
Grades 9-9
6.78 miles away






