7701 Hardeson Road #37, Everett, WA 98203
- 3 beds |
- 2 baths
Manufactured Home
Built in 1979
22.8acre lot
—— car garage
$——/sqft
Listed 1 month ago
Property Description
This listing courtesy of Juan Sanchez, Skyline Properties, Inc.
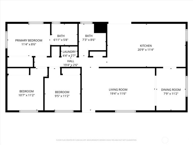
Completely Remodeled Home in All-Ages Park - Welcome to Westridge Estates! This stylishly updated home features 3 bedrooms 2 baths w/ 1,152 livable sq footage and a carport big enough for 3 cars. New waterproof/scratchproof laminate hardwood flooring w/ new subflooring, new plumbing, new electrical, new roof, new siding, new windows, new H2O tank & furnace. The kitchen has all new cabinets, countertops & pantry, with new fixatures throughout, new SS appls & laundry area with W/D. Primary bedroom has an en suite bathrm with walk-in closet! There's also a low maintenance backyard that's partially fenced with a shed. Located on a corner lot, home sits on a quite and safe side street. Located near Boeing, Parks, Paine Field Airport & Route 526!
- Listing Status:
- Pending
- Listing Office:
- Skyline Properties, Inc. : 206-522-3400
- Listing Agent:
- Juan Sanchez : 206-522-3400
- MLS ID:
- 2439322

- General: Water Heater
- Appliances: Dishwasher(s)Dryer(s)Microwave(s)Refrigerator(s)Stove(s)/Range(s)Washer(s)
- Flooring: Laminate
- A/C: None
- Heating: Forced Air
- Fireplace: Fireplaces: 0
- Eco/Green Feature: Double Pane Windows
- General: Wood Products
- Parking: CarportParking spaces: 2
- Roofing: Composition
- General: OneSlab
- Originating MLS: nwmls
- School District: Mukilteo
- County: Snohomish
- Zoning: 00960013203700
- View: TerritorialView
- Water: Public
- Source: nwmls
This listing courtesy of Juan Sanchez, Skyline Properties, Inc.
Monthly Payment
- Principal & Interest $
- Property Taxes $
- Home Insurance $
- VA Funding Fee $
Location
Schools Nearby
Horizon Elementary School
222 W Casino Rd, Everett, WA, 98204
Grades KG-5
0.53 miles away
Explorer Middle School
9600 Sharon Dr, Everett, WA, 98204
Grades 6-8
1.15 miles away
Mukilteo Reengagement Academy Open Doors
9401 Sharon Dr, Everett, WA, 98204
Grades 9-12
1.04 miles away






