1840 Central Place S #B10, Kent, WA 98030
- 2 beds |
- 1 bath
Condominium
Built in 1978
—— sqft lot
—— car garage
$——/sqft
Listed 1 month ago
Property Description
This listing courtesy of Diana L. Nelson, RE/MAX Metro Realty, Inc.
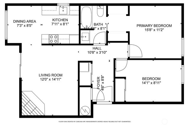
Fantastic opportunity to own this nicely updated 2 bedroom condo located in the Green River Estates. Move in ready w/new wood laminate flooring, newer appliances & freshly painted. Top floor unit w/vaulted ceilings. Natural light fills the charming living room w/wood burning fireplace. Enjoy the sun on the ample size deck off & dining area. Updated bathroom, 2 nice size bedrooms, newer windows, & in unit washer and dryer. Located just minutes to shopping, restaurants & easy access to freeways. Well maintained complex. No rental cap & pet friendly. Assigned parking in front w/tons of guest parking. Check out first time buyers grant programs, purchase for as little as 1% down. Seller will pay $2,500 towards buyer closing cost at closing.
- Listing Status:
- Pending
- Listing Office:
- RE/MAX Metro Realty, Inc. : 206-322-5700
- Listing Agent:
- Diana L. Nelson : 206-322-5700
- MLS ID:
- 2436302

- General: Cooking-ElectricDryer-ElectricFireplaceWasherWater Heater
- Appliances: Dishwasher(s)Dryer(s)Refrigerator(s)Stove(s)/Range(s)Washer(s)
- Laundry: Electric Dryer HookupWasher Hookup
- Flooring: Laminate
- A/C: None
- Heating: Baseboard
- Fireplace: Wood BurningFireplaceFireplaces: 1
- General: Wood
- Parking: Off StreetUncoveredParking spaces: 1
- Roofing: Composition
- General: One
- HOA Amenities: Club HouseCommon Area MaintenanceSewerTrashWater635.34Monthly
- Originating MLS: nwmls
- School District: Kent
- County: King
- Zoning: 2890600100
- View: TerritorialView
- Source: nwmls
This listing courtesy of Diana L. Nelson, RE/MAX Metro Realty, Inc.
Monthly Payment
- Principal & Interest $
- Property Taxes $
- Home Insurance $
- VA Funding Fee $
Location
Schools Nearby
Scenic Hill Elementary School
26025 Woodland Way S, Kent, WA, 98030
Grades KG-5
0.89 miles away
Mill Creek Middle School
620 Central Ave N, Kent, WA, 98032
Grades 6-8
1.55 miles away
Kent Meridian High School
10020 SE 256th St, Kent, WA, 98030
Grades 9-12
1.24 miles away






