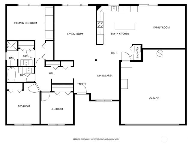
1532 Floral Court, Longview, WA 98632
- 3 beds |
- 2 baths |
- 1,530 sqft
Single-Family Home
Built in 1978
475sqft lot
2 car garage
$278/sqft
Listed 24 days ago
Property Description
This listing courtesy of Jennifer Margaris, Windermere Northwest Living
Have you been looking for a ONE-LEVEL home? Would you like to live on a CUL-DE-SAC? Is it important to you to feel TUCKED AWAY in a great neighborhood, yet be just right around the corner from everything you need? Do you love the CURB APPEAL of a home that doesn't look like every other home? Does MOVE-IN READY sound good to you? Is it a relief to have a NEWER ROOF and APPLIANCES? 1532 Floral Court offers all of that plus a big open Kitchen, an extra living/multipurpose area, a clean and neutral pallet, a 2-car attached garage, and a fenced backyard for fur babies and entertaining! If this all sounds good, you should go tour soon. This home "feels" even better than it looks ....
- Listing Status:
- Pending
- Listing Office:
- Windermere Northwest Living : 360-636-4663
- Listing Agent:
- Jennifer Margaris : 360-636-4663
- MLS ID:
- 2443075

- General: Bath Off PrimaryWater Heater
- Appliances: Dishwasher(s)DisposalMicrowave(s)Refrigerator(s)Stove(s)/Range(s)
- Basement: None
- Flooring: Laminate
- A/C: Central A/CForced Air
- Heating: Forced AirHeat Pump
- Fireplace: ElectricFireplaces: 0
- General: Wood Products
- Parking: DrivewayAttached GarageOff StreetParking spaces: 2
- Roofing: Composition
- General: One
- HOA Amenities: 0.0
- Originating MLS: nwmls
- School District: Longview
- County: Cowlitz
- Topography: Level
- Zoning: 06763277
- Water: Public
- Sewer: Sewer Connected
- Source: nwmls
This listing courtesy of Jennifer Margaris, Windermere Northwest Living
Monthly Payment
- Principal & Interest $
- Property Taxes $
- Home Insurance $
- VA Funding Fee $
Location
Schools Nearby
Olympic Elementary School
1324 30th Ave, Longview, WA, 98632
Grades KG-5
0.23 miles away
Monticello Middle School
1225 28th Ave, Longview, WA, 98632
Grades 6-8
0.38 miles away
Longview Virtual Academy
2742 Harding St, Longview, WA, 98632
Grades 6-12
0.41 miles away






